Wola Rzędzińska 489W

Nowoczesny dom jednorodzinny w zabudowie bliźniaczej – Wola Rzędzińska 489W

Planowana inwestycja obejmuje dwa domy jednorodzinne w zabudowie bliźniaczej, realizowane na osobnych, wydzielonych działkach w samym centrum miejscowości Wola Rzędzińska. To unikalna oferta na rynku – pełnoprawne budynki jednorodzinne, a nie lokale mieszkalne objęte ustawą lokalową. Projekt łączy nowoczesne rozwiązania techniczne, funkcjonalny układ pomieszczeń oraz możliwość powiększenia powierzchni użytkowej poprzez adaptację strychu na cele mieszkalne.

Lokalizacja – wszystko w zasięgu kilku minut

Domy zlokalizowane są w centrum Woli Rzędzińskiej, w bezpośrednim sąsiedztwie pełnej infrastruktury:

  • szkoła i przedszkole
  • place zabaw
  • dworzec PKP
  • sklepy i punkty usługowe
  • kościół
  • boiska sportowe
  • przystanek autobusowy

Działki położone są przy drodze gminnej, oświetlonej latarniami ulicznymi.

Informacje o budynkach

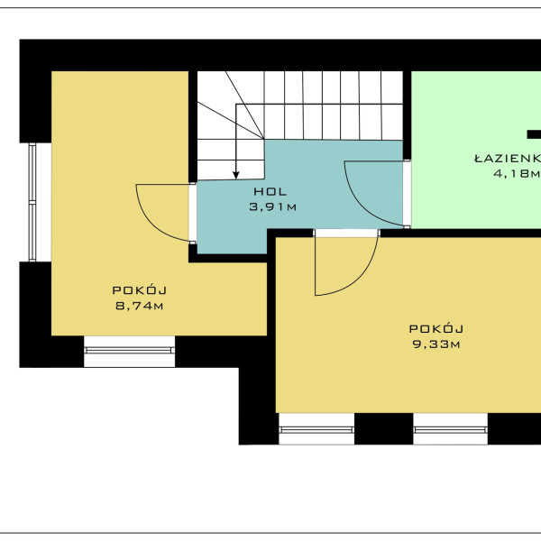
  • powierzchnia użytkowa: 57 m²
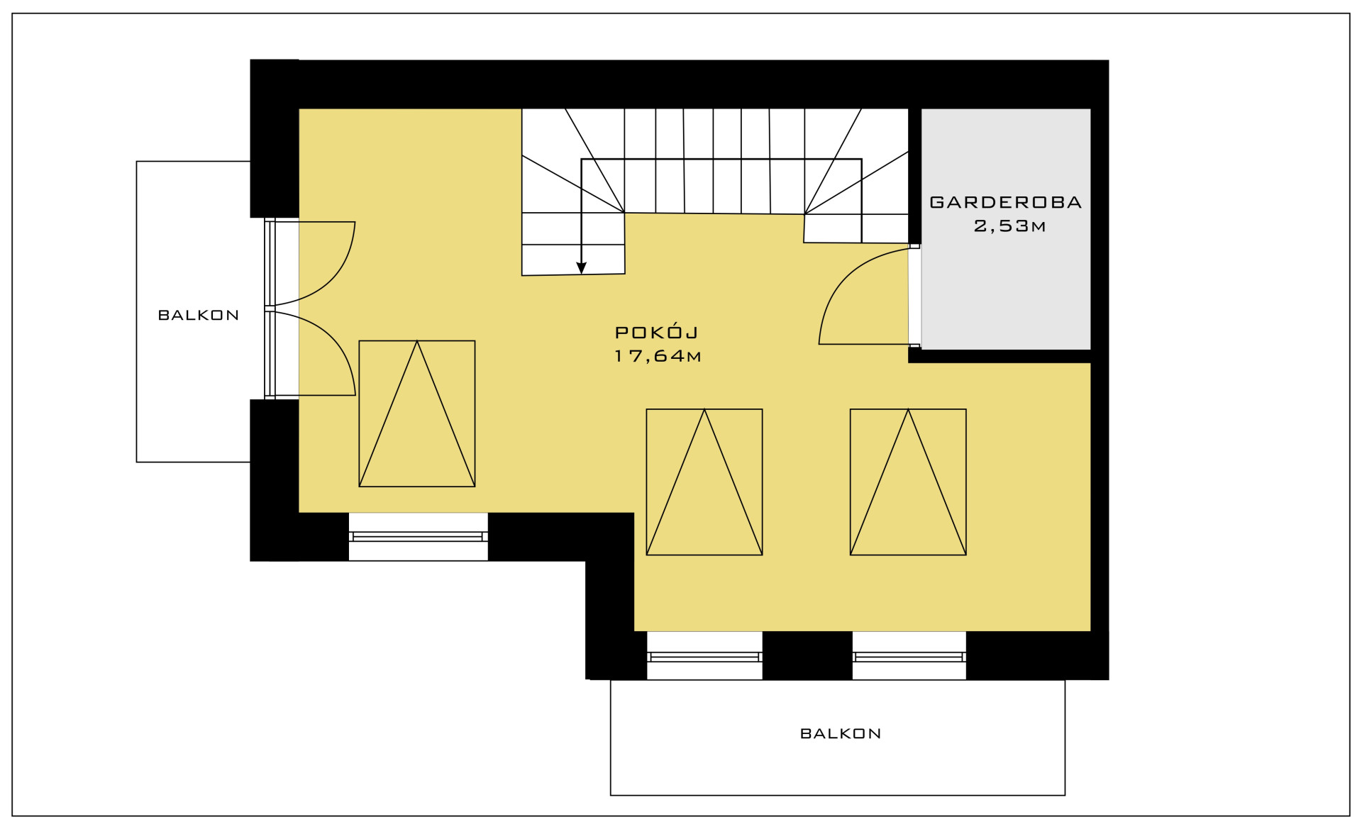
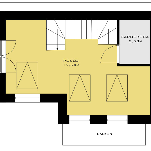
  • strych do adaptacji: 20,5m² (pow. użytkowa), 24,11m² (pow. podłogowa)
  • powierzchnia działki: 220 m²

Adaptacja poddasza na cele mieszkalne jest możliwa dzięki bardzo wysokiej ścianie kolankowej – aż 165 cm, co zapewnia pełną funkcjonalność dodatkowego pokoju. 

Komfort i nowoczesne rozwiązania

  • ogrzewanie podłogowe w całym budynku
  • możliwość wyboru źródła ogrzewania: pompa ciepła lub gaz
  • funkcjonalny układ pomieszczeń
  • osobne działki dla każdego domu
  • nowoczesna bryła i estetyczna zabudowa
  • okna trzyszybowe

Media i technologia

  • woda miejska
  • kanalizacja sanitarna
  • gaz
  • energia elektryczna
  • światłowód

Ekologia i energooszczędność

  • ocieplenie budynków: styropian 20 cm
  • nowoczesne rozwiązania ograniczające koszty eksploatacji
  • możliwość energooszczędnego systemu ogrzewania poprzez zainstalowanie pompy ciepła
  • możliwość instalacji paneli fotowoltaicznych

 

Cena: 7400zł/m2

PLANY

 

Parter :

 

 

Piętro wersja bez adaptacji poddasza:

 

 

Piętro wersja z adaptacją poddasza:

 

 

 

Poddasze:

 

Galeria